Ahlsell & GOGO

Sijainti: Seinäjoki

Tyyppi: Varastomyymälä ja

kuntosali

Koko: 3490 m2

Suunnittelu: 2023-2025

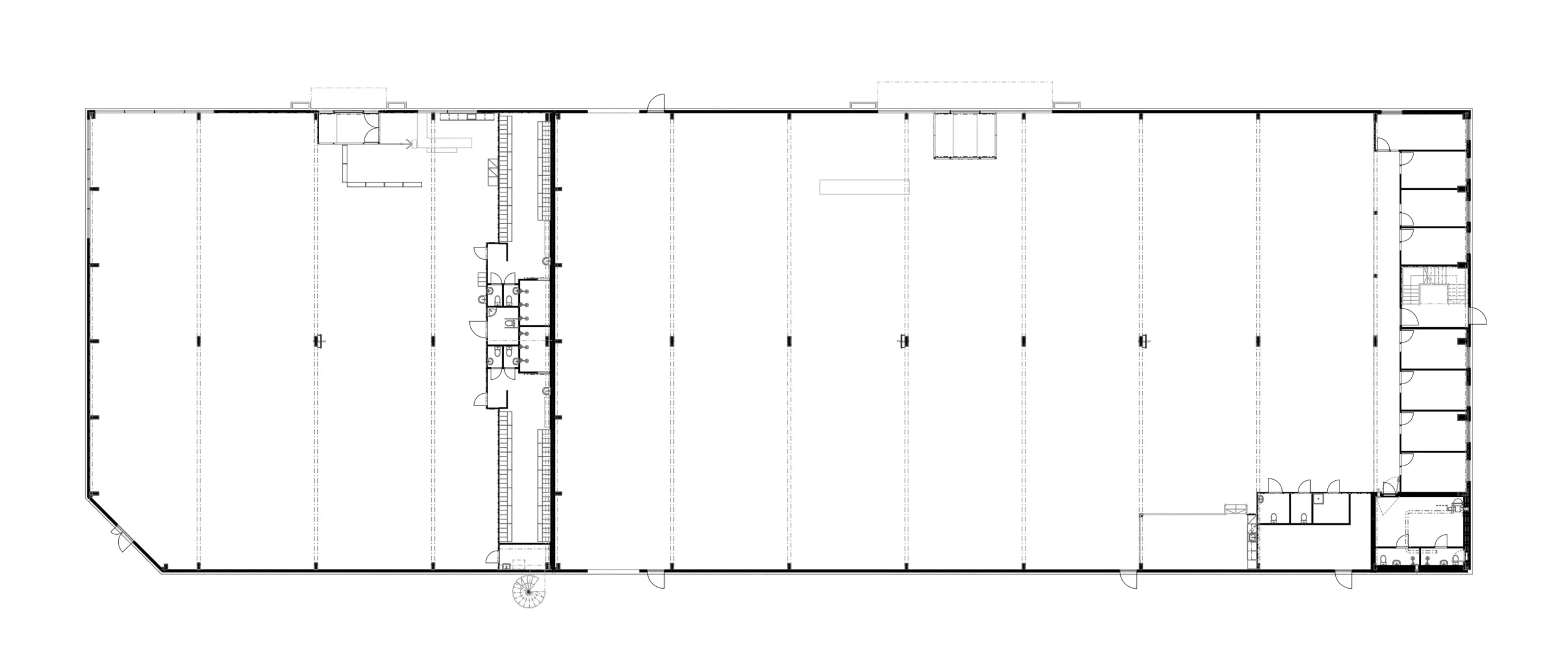
Seinäjoen Tehtaantielle suunniteltiin uudet toimitilat Ahlsell-varastomyymälälle ja GOGO-kuntosalille.

Ahlsellin osuus on noin 2 100 m2, joka koostuu avoimesta hallitilasta sekä toimistopäädystä. Toimistossa tilat suunniteltiin kahteen tasoon. Rakenteet ratkaistiin liimapuurungolla, jakamalla 31 metrin jänneväli kahteen osaan pilareilla. Näin saatiin liimapuupalkeista hieman matalampia.

GOGOn puoli on 1000 m2, joka koostuu avoimesta kuntosaliosasta ja pukuhuone- ja asiakaspalvelutiloista. GOGOn puoli on yhden julkisivuelementin (1200 mm) matalampi. Massojen kokoeroa korostaa myös julkisivun värinvaihdos. Näin saatiin ison rakennuksen mittakaavaa inhimillisemmäksi.

Pääsisäänkäyntejä korostetaan brändivärien mukaisella peltiverhouksella.

Rakennuksen pääsisäänkäynnit on korostettu brändivärien mukaisella peltiverhouksella, mikä luo selkeän ja tyylikkään taustan toimijoiden valomainoksille.

Rakennuksen ylläpitokustannuksia saadaan minimoitua ekologisilla energiaratkaisuilla – lämmönlähteenä toimii maalämpö ja vesikatolla on varaus aurinkopaneeleille.

Muita projekteja