As Oy Pyynikin Panimo 1897

Sijainti: Tampere

Tyyppi: Asuntosuunnittelu

Koko: 5600 m2

Suunnittelu: 2022-2023

Pyynikin Panimo on yksi Suomen vanhimmista panimorakennuksista.

Saimme toimeksiantona suunnitella asuntoja Tampereelle, vanhaan Pyynikin Panimoon. Vuonna 1897 oluttehtaan käyttöön rakennetun tehdasrakennuksen on suunnitellut arkkitehti Arthur af Hällström. Rakennus on yksi Suomen vanhimmista panimorakennuksista ja se edustaa uusrenessanssista teollisuusarkkitehtuuria. Punatiilinen tehdasrakennus on merkitty suojelukohteeksi.

Havainnollistava kuva sisätilan korkeudesta ennen muutosta.
Vanha tilanne
Havainnollistava kuva parvellisesta asunnosta.
Uusi tilanne – korkea tila hyödynnetty parvena

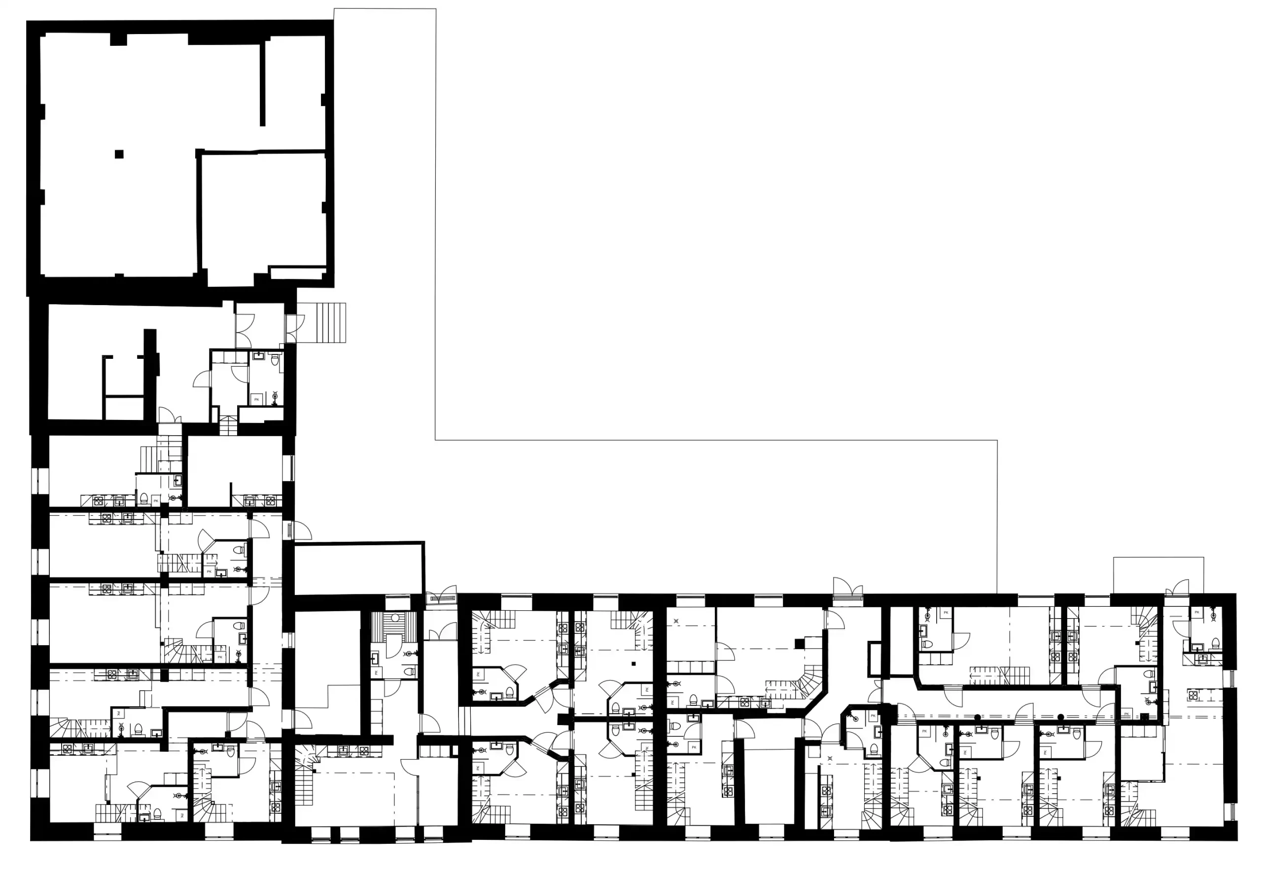
Rakennuksen sisätilat ovat varsin monimuotoiset - saman kerroksen sisällä huonekorkeus ja lattiakorko vaihtelee monta kertaa.

Tilat polveilevat eri kerrosten välillä. Massiiviset tiiliseinät ja paikallavaletut välipohjat betonipalkkeineen luovat rakennukseen omaleimaisen tunnelmansa. Rakennuksen mallintaminen vanhojen piirustusten pohjalta oli aikaa vievää, mutta tärkeää, onnistuneen lopputuloksen aikaansaamiseksi.

Nykyaikaiset huoneistot sommiteltiin rakennukseen täysin sen ehdoilla. Huoneistoja suunniteltiin rakennukseen yhteensä noin 50, joista valtaosa on kaksioita. Kaksioissa huoneisto-oven puolelle saatiin korkean huonetilan ansiosta avoparvi. Korkeat kaari-ikkunat ulkoseinällä tuovat luonnonvaloa sekä alakerran keittiöön ja olohuoneeseen, että avoparven makuutiloihin.

Tunnelmalliset saunatilat muodostavat yhtenäisen kokonaisuuden muiden tilojen kanssa.

Muita projekteja