Talo K

Sijainti: Hollola

Tyyppi: Omakotitalo

Koko: 156 m2

Suunnittelu: 2025

Neljän makuuhuoneen omakotitalo toteutettu klassisen skandinaavisella tyylillä.

Rakennus sijoittuu asemakaavatontille, joka rajautuu länsi- ja pohjoissivultaan metsään, kadun ollessa tontin itäpuolella. Tämä antoi mielekkään lähtöasetelman tontin suunnitteluun – rakennuksen olohuone ja iso oleskelupiha saatiin avattua metsään päin, ilta-auringon puolelle.

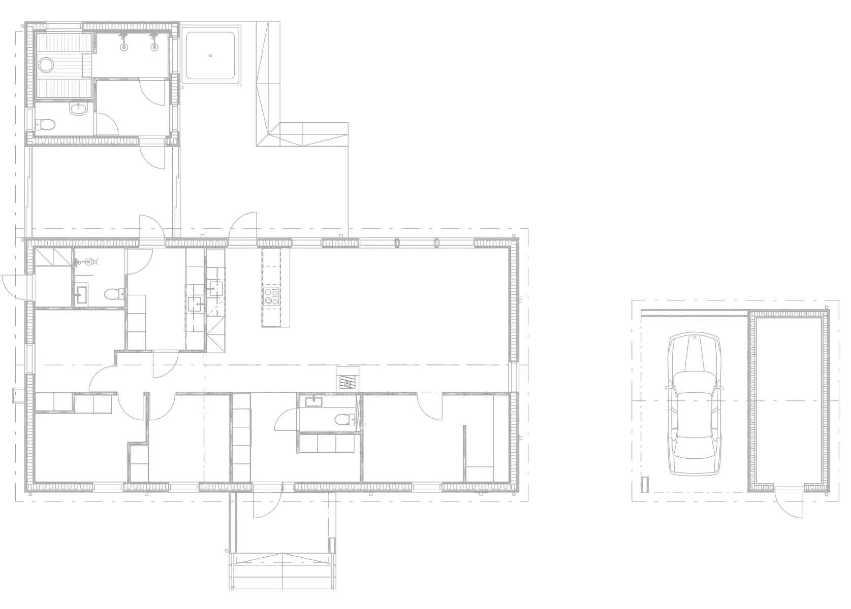
Tilaajalla oli alusta asti toiveena saada taloon erillinen sauna- ja kylpyosasto. Lasitetulla terassilla saatiin eriytettyä saunasiipi selkeästi erilliseksi osaksi, kuitenkin säilyttämällä sen helppo käytettävyys kaikkina vuodenaikoina.

Väritetty havainnekuva omakotitalotontista
Tontin länsi- ja pohjoispuolen metsä luo viihtyisän yksityisen oleskelupihan talon takapihalle.

Pohjaratkaisu on selkeälinjainen. Olohuone-ruokailutila-keittiö on yhtenäistä, avaraa oleskelutilaa.

Rakennuksen eteläosassa on lasten makuuhuoneet, kodinhoitohuone, pesuhuone ja tekninen tila. Eteisen yhteydessä on WC ja kuraeteinen. Päämakuuhuone on sijoitettu erilleen muista makuuhuoneista, olohuoneen yhteyteen. Olohuoneen isot ikkunat yhdessä vinon sisäkaton kanssa tuovat valoa ja avaruutta sisätiloihin.

Tasaräystäinen saunasiipi ja pääsisäänkäynnin katos luo tyylikkään kontrastin päärakennuksen jyrkkään harjakattoon.

Muita projekteja