Öljypiste

Sijainti: Lahti

Tyyppi: Korjaamo

Koko: 1 826 m2

Suunnittelu: 2024-2025

Öljypisteelle suunniteltiin uudet, nykyaikaiset toimitilat Lahden Nikkilään, Uudenmaankadun varteen.

Öljypiste on aikaisemmin palvellut Lahdessa kolmessa osoitteessa, ja nyt yhdistetään toiminnot saman katon alle.

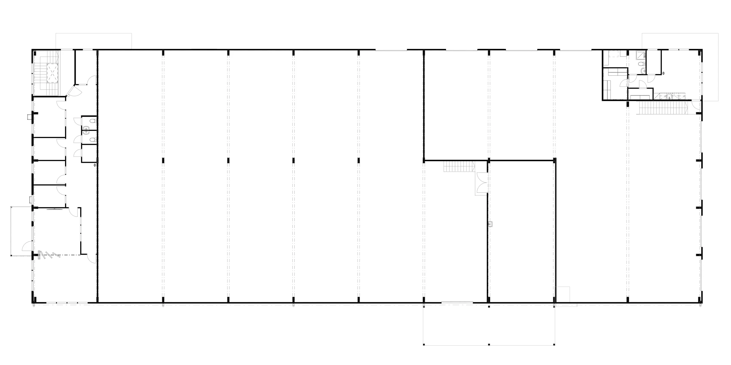
Noin 1800 m2 rakennus sisältää toimistot kahdessa kerroksessa, varastomyymälän ja huoltokorjaamon.

Suunnittelussa panostettiin erityisesti huoltokorjaamon toiminnallisuuteen, johon Öljypisteen henkilöstöltä tuli vahva näkemys.

1. krs
2. krs

Julkisivu on Öljypisteen vahvan brändin mukainen.

Julkisivu on Öljypisteen vahvan brändin mukainen – musta tausta, jota punaiset valomainokset ja pisarateippaukset rytmittävät.

Huoltokorjaamo tulvii luonnonvalossa nosto-ovien ikkunoiden ansiosta lisäten työviihtyvyyttä.

Aikaisemmin RTV:n käytössä ollut mainospyloni saa uuden elämän Öljypisteen viestinviejänä.

Muita projekteja